|
Type of Subsea
Pipeline
Trunk lines
Loading
(Unloading)
lines
Design
Evaluations and
Pipe Parameters
Buckle Analysis

Pipeline-Soil
Stability


Stresses Due to
Elevated
Obstructions

Stresses Due to
Low Depressions

Pipeline
Installation

Pipe
Installation by
Steel Barge

Pipe
Installation by
Rolling Ship

S - Lay

J - Lay

Bottom Towing

Surface
Towing


Examples of
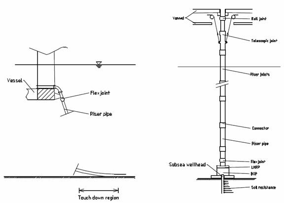
Riser component
|